Ver Tour Virtual
- $3,400,000 MXN En Venta
- 2 recámaras
- 1 baño, 1 medio baño
- 88 m² de construcción
- 2 Estacionamientos
Detalles
- Tipo: Departamento
- ID: EB-FG4129
- Antigüedad: A estrenar
- Recámaras: 2 recámaras
- Baños: 1
- Medios baños: 1
- Piso: 2
- Mantenimiento: 2330
- Asesor: Carmen Laborin
Descripción
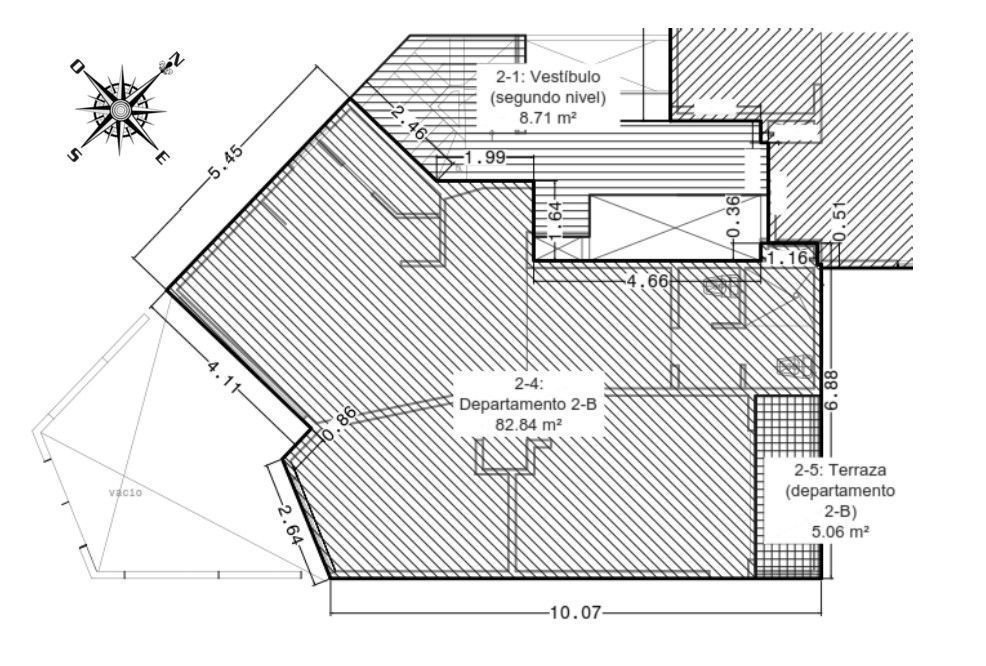
DEPTO. 2B:
83 M2 HABITABLES
+ 5 M2 DE BALCON (SEGUNDO NIVEL) +Bodega: 2.30 M2.
$3,400,000 MN*
Que esperas para estrenar tu departamento en una buena zona y con muy buenos accesos. Pensarías en practicidad primero, pero aquí no hay que comprometer nada. Disfruta de tu nuevo departamento y una copa en tu comodo balcón o amplisimas terrazas !DOS! con total de 43 m2 de area. Trabaja desde casa o deja esta, solo para tu goce... Si quieres por la tarde sube al rooftop común de !mas de 170 M2! Solo para los 6 departamentos... No es esto un privilegio o que lo es?! Ejercitate, toma el sol, descansa, reunete con amigos. Por espacio y comodidad no faltara.
*Departamentos de 2 recamaras
*1.5 baños
*Cocina equipada
*Excelente luz
*2 estacionamientos fijos, techados y con acceso independiente para cada departamento.
NO DEJES ESCAPAR ALGUNA DE ESTAS LIMITADAS OPORTUNIDADES !QUEDAN SOLO 3 YA! Cual sera el tuyo?...
*PRECIOS Y REFERENCIAS MERAMENTE INFORMATIVAS, PRECIOS PUEDEN CAMBIAR SIN PREVIO AVISO.
(No tienen elevador).
*OPCIONAL PARA USO COMERCIAL, VENTA DE LOCAL COMERCIAL EN EDIFICIO, PERMISO USO MIXTO ESPECIFICO LOCAL DE 58 M2. Entrada independiente. Pregunten por esta opción y precio especial de compra integrada (no se vende de manera independiente).
Amenidades
- Balcón
- Cisterna
- Estacionamiento techado
- Facilidad para estacionarse
- Roof garden
- Terraza
- Bodega
- Cocina equipada
- Cocina integral
- Mascotas permitidas
- Permitido fumar
Ubicación










